爱体育

跟随彩虹 基辅Underhub学校与联合办公设计欣赏

案例说明

Underhub是乌克兰基辅本地的一家现代语言学校,同时这里还兼做联合办公空间,设有共享工作区、会议室和休息区。本案的设计灵感来自伦敦的地铁环境设计,将靓丽的导向色彩引入到室内设计中。如此充满创意的设计构想来自于基辅本地的一位才华横溢的建筑设计师 Emil Dervish。

Underhub是乌克兰基辅本地的一家现代语言学校,同时这里还兼做联合办公空间,设有共享工作区、会议室和休息区。本案的设计灵感来自伦敦的地铁环境设计,将靓丽的导向色彩引入到室内设计中。如此充满创意的设计构想来自于基辅本地的一位才华横溢的建筑设计师 Emil Dervish。
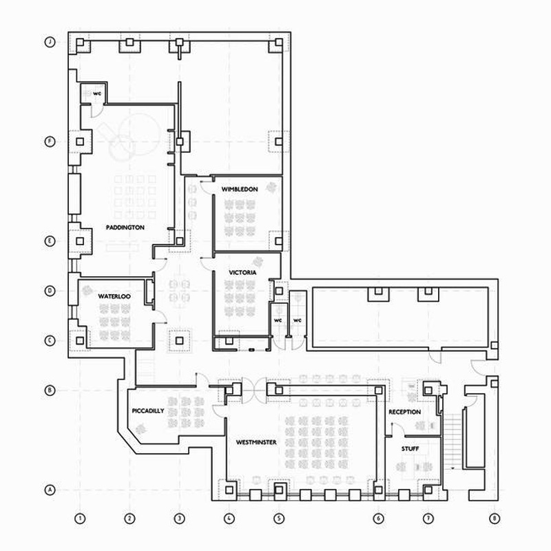
如彩虹般缤纷绚丽的地面彩色线条设计,受到伦敦地铁的灵感启发,不仅具有空间的导向作用,还成为本案的设计亮点。地面上的每一道彩虹线条都标有地铁站的名称,将人们从接待区导引至演讲大厅、主题海报、古色古香的“出口”指示牌、以及如同地铁车厢的红色盒子和其它一些细节设计,令人们时刻感受身处伦敦地铁的氛围。
为了呼应整体的英式氛围,室内出现许多“英式元素”,如标志性的电话亭和白色瓷砖饰面等。每间教室的名称也援引伦敦地铁站站名,同地面导引的彩虹线条和名称一致。比如红色线条指引的“Westminster”(威斯敏斯特),线条的终端则是以红色地面装饰的“Westminster”教室;以及蓝色线条指引的 “Victoria”(维多利亚);橙色线条指引的伦敦“Piccadilly”(皮卡迪利)大街等。童鞋们只要跟随彩虹线条的指引就能到达他们的目的地,再也不用担心会迷失了。
这个项目同时还设有联合办公的开放空间,一间用作演讲的大型会议室、以及一个舒适的休闲空间,童鞋们也可以一同享用这处休闲区,度过他们快乐的课余时间。